Büro mit möglicher Ladenfläche und Schaufensterfront in Barmbek nahe der belebten Fuhlsbüttler Str.

Verfügbar ab
nach Vereinbarung

Objektbeschreibung und Lage

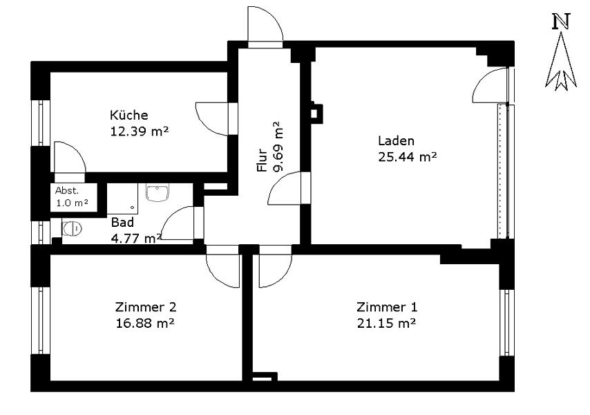
Die angebotene Gewerbefläche mit einer Mietfläche von ca. 91 m² befindet sich im Erdgeschoss und teilt sich in 2 Zimmern mit vorderer Ladenfläche auf. Des weiteren befindet sich in dem Objekt eine Küche und ein vollausgestattetes Badezimmer.
Erdgeschoss + Keller

Allgemeine Daten

  • Adresse: Schwalbenstraße 57, 22305 Hamburg
  • Objektnummer: 4580-901
  • Etage: EG
  • Verfügbar ab: nach Vereinbarung

Kostenzusammensetzung

  • Kaltmiete: 1.998,99 €
  • Heizkostenvorauszahlung: 290,00 €
  • Kaution: 5.996,97 €

Sonstiges

Die Miete setzt sich wie folgt zusammen: Kaltmiete 1.998,99 Euro Betriebskostenvorauszahlung: 140,00 Euro Heizkostenvorauszahlung: 150,00 Euro Zwischensumme: 2.288,99 Euro zzgl. 19% MwSt.: 434,91 Euro GESAMTMIETE: 2.723,90 Euro Mietkaution: 3x Kaltmiete = 5.996,97 Euro Es wird eine Vermietung für 10 Jahre (z.B. feste Laufzeit 2 Jahre plus 4x 2 Jahre Option oder ähnlich) angestrebt. Der Mietvertrag sieht eine Indexmiete vor.

Bausubstanz und Energieausweis

  • Objektzustand: Gepflegt
  • Ausstattungsqualität: Standard
  • Baujahr: 1927
  • Energieausweis: liegt vor
  • Erstellungsdatum: 2008
  • Energieausweistyp: Verbrauch
  • Heizungsart: Elektro

News bei FRANK

FRANK als zertifizierter WEG-Verwalter

FRANK als zertifizierter WEG-Verwalter

Die Vielseitigkeit der Finanzwelt bei FRANK

Die Vielseitigkeit der Finanzwelt bei FRANK

FRANK stellt vor

FRANK stellt vor

Objektbetreuung bei FRANK

Objektbetreuung bei FRANK

Richtfest von BALTIQUE in Lübeck-Travemünde

Richtfest von BALTIQUE in Lübeck-Travemünde