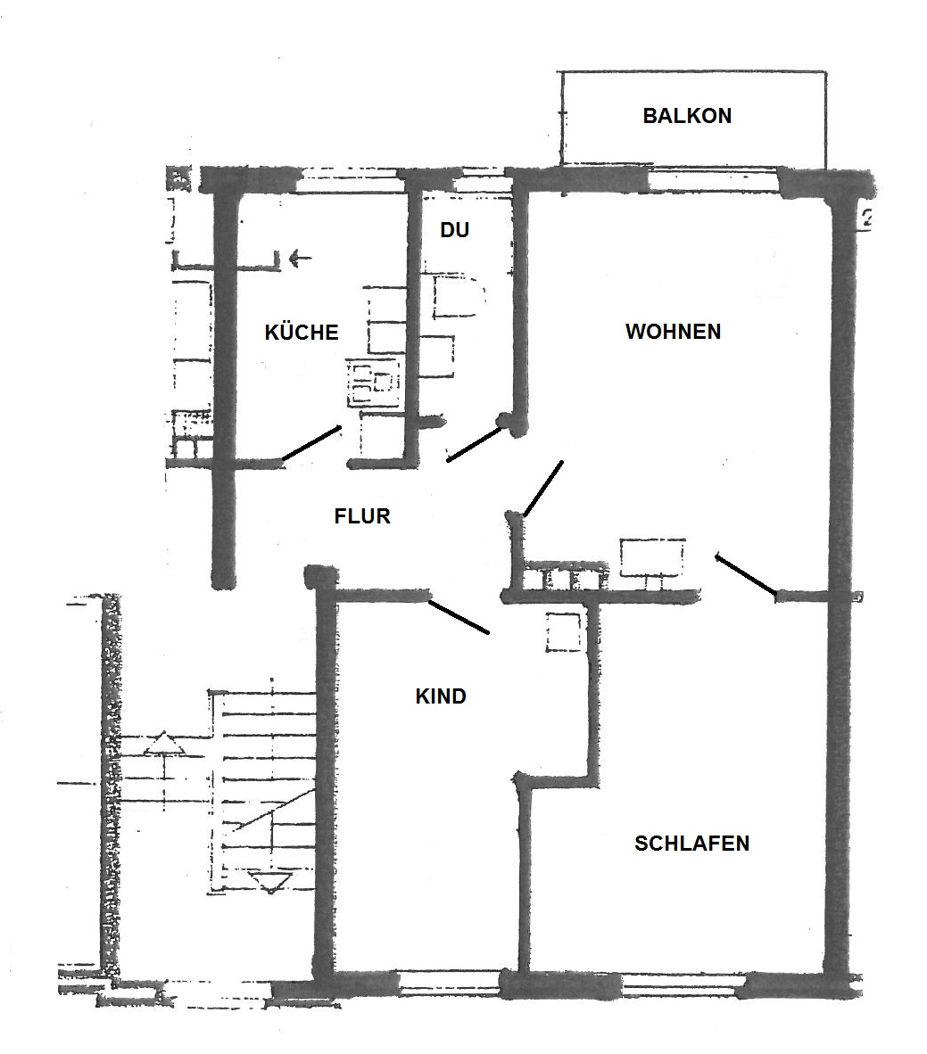
kleine 3- Zimmerwohnung mit Balkon in Kronshagen

Verfügbar ab
01.07.2026
Zimmer
3,0
Fläche
52,21 m²
Gesamtmiete
850,00 €

Objektbeschreibung und Lage

Die Wohnung liegt in einem rotverklinkerten gepflegten Mehrfamilienhaus.
Das Ortszentrum von Kronshagen ( Kreis Rendsburg-Eckernförde ) mit seinen vielen Geschäften sowie Schulen und Kindergärten liegen in unmittelbarer Nähe. Bushaltestellen sind ebenfalls schnell zu Fuß zu erreichen.
Kronshagen ist eine Gemeinde in Schleswig-Holstein, Deutschland, die sich in unmittelbarer Nähe zur Stadt Kiel befindet. Die Wohngegend ist ruhig und angenehm. Es gibt verschiedene Einkaufsmöglichkeiten, wie Supermärkte, Drogerien und Bäckereien, sowie Ärzte, Apotheken und Schulen in der Nähe.
Balkon/Terrasse icon Balkon/Terrasse
Garten icon Garten
EBK icon EBK
Keller icon Keller
Dusche icon Dusche
Bad mit Fenster icon Bad mit Fenster

Allgemeine Daten

  • Adresse: Kopperpahler Allee 16b, 24119 Kronshagen
  • Objektnummer: 5550.114
  • Wohnfläche ca.: 52,21 m²
  • Etage: 1
  • Zimmer: 3,0
  • Verfügbar ab: 01.07.2026

Kostenzusammensetzung

  • Kaltmiete: 630,00 €
  • Betriebskostenvorauszahlung: 100,00 €
  • Heizkostenvorauszahlung: 120,00 €
  • Gesamtmiete: 850,00 €
  • Kaution: 1.890,00 Euro Kaution

Sonstiges

Der Mietvertrag wird auf unbestimmte Zeit mit einem Kündigungsausschluss für die ersten 15 Monate abgeschlossen. Indexmiete: Die Miete wird durch den vom Statistischen Bundesamt ermittelten Preisindex für die Lebenshaltung aller privaten Haushalte in Deutschland (Verbraucherpreisindex für Deutschland) bestimmt. Eine erste Änderung der Miete kann frühestens nach Ablauf eines Jahres vorgenommen werden. Wir freuen uns auf Ihre Kontaktaufnahme.

Bausubstanz und Energieausweis

  • Objektzustand: Gepflegt
  • Ausstattungsqualität: Standard
  • Baujahr: 1956
  • Energieausweis: liegt vor
  • Erstellungsdatum: 2008
  • Energieausweistyp: Verbrauch
  • Endenergieverbrauch: 126 kWh/(m²a)
  • Heizungsart: Gas

Endenergieverbrauch dieses Gebäudes
126,00 kWh/(m² • a)

News bei FRANK

FRANK als zertifizierter WEG-Verwalter

FRANK als zertifizierter WEG-Verwalter

Die Vielseitigkeit der Finanzwelt bei FRANK

Die Vielseitigkeit der Finanzwelt bei FRANK

FRANK stellt vor

FRANK stellt vor

Objektbetreuung bei FRANK

Objektbetreuung bei FRANK

Richtfest von BALTIQUE in Lübeck-Travemünde

Richtfest von BALTIQUE in Lübeck-Travemünde